太阳红装饰官方网站
|  联系我们  |     18962420113

湖北宁丰新材科技有限公司

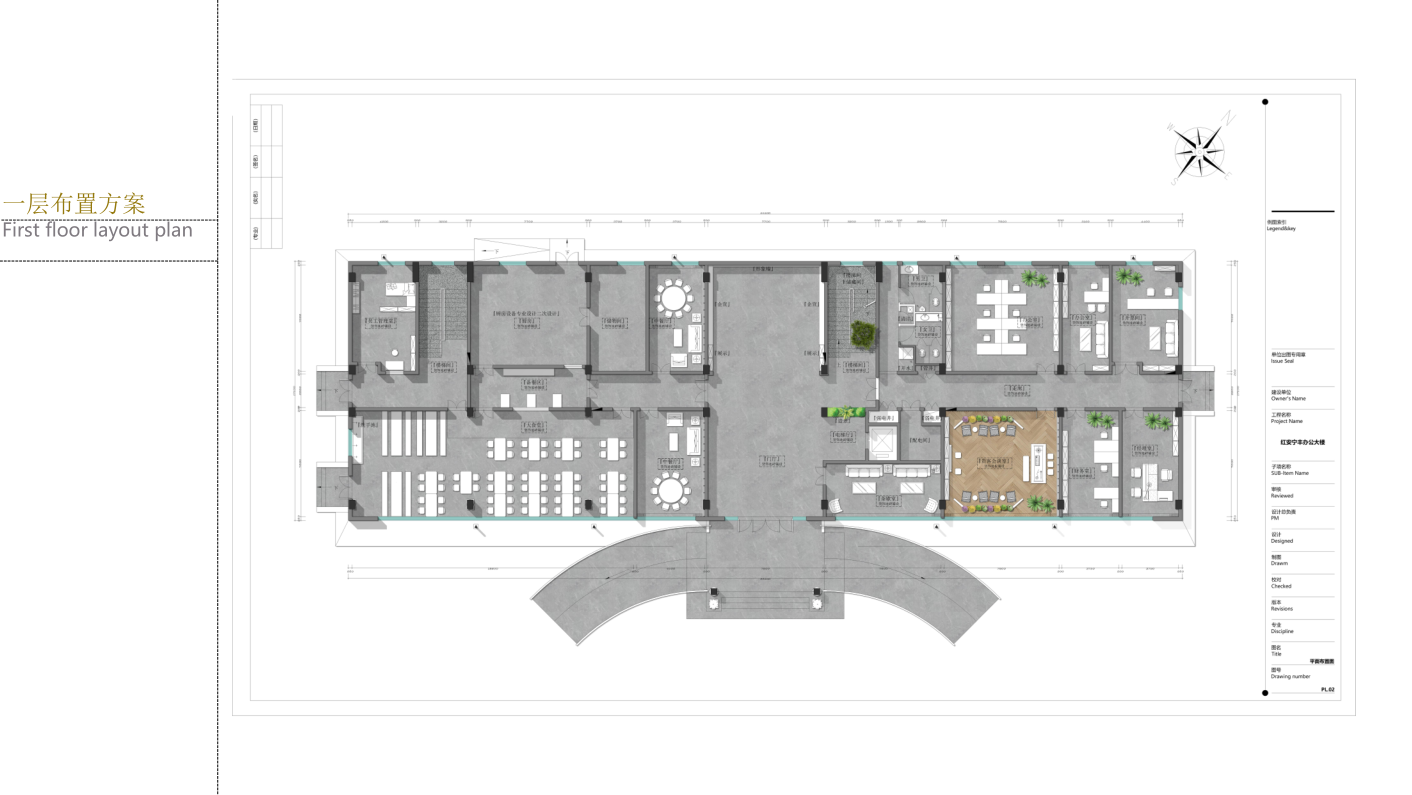
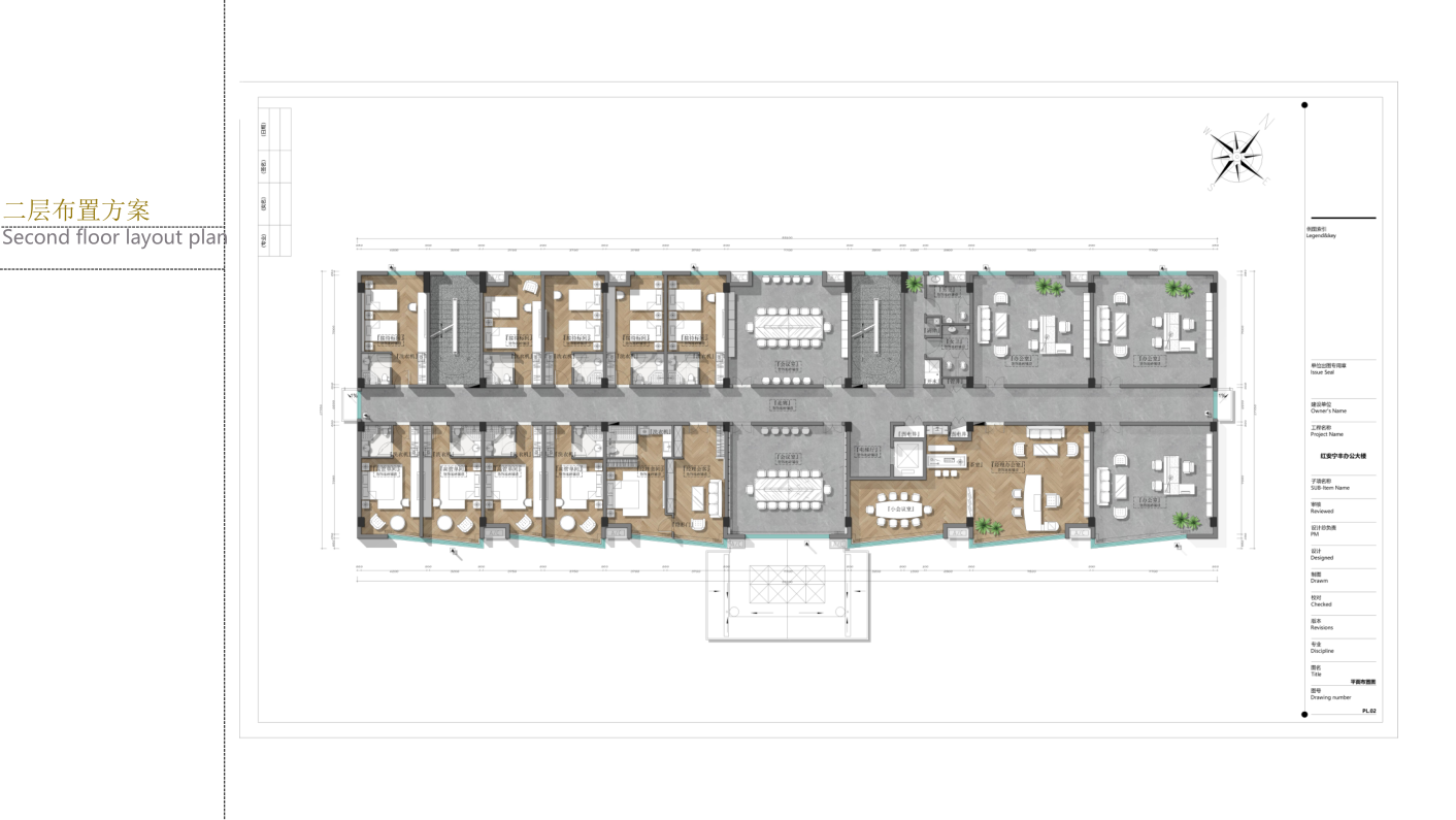
平面布置图   LAYOUT PLAN

案例详情   CASE DETAILS

湖北宁丰新材科技有限公司年产50万立方米 超强刨花板新材料项目,总投资10亿元人民币, 占地约350亩,购置相关机械设备拟建年产50万立 方米超强刨花板新材料生产线1条,该生产线引进 意大利IMAL-PAL帕尔公司的筛选机、拌胶系统、 GLOBUS公司的刨片机以及具有世界先进水平的亚 联机械制造有限公司连续平压生产线设备,采用 世界领先的工艺技术生产高品质超强刨花板。 该项目属于红安家居主导产业的上游配套产 业项目,项目入驻后将补齐红安家居产业的重要 短板,同时可以带动中游龙头家居产业项目入驻。 项目建成后年纳税2000万元以上,亩均税收6.5万 元以上,安排就业260人。 积极整合优质资源,在产业绿色发展、工业 互联、物联、技术革新、产品创新等方面,高标 准、高质量、高效率完成项目建设,为红安建设 中部家居之都打下坚实基础,推动发展红安现代 家居产业,发扬宁丰精神,再创宁丰速度,早日 建成投产。

案例设计师

设计经验:5年年
设计理念:时尚简约

免费咨询报价

填写表单报名享受免费咨询报价

售前咨询热线:18962420113

公司地址:昆山万达广场5号楼

Copyright © 昆山太阳红装饰设计工程有限公司 All Rights Reserved 苏ICP备13015605032号

咨询热线:18962420113

免费获取装修报价
一次选择,终生朋友,终生维护